Skriv inn din e-post
Produkter
Finn blant alle våre produkter
Andre måter å finne på
Andre måter å finne på
Andre måter å finne på
Andre måter å finne på
Andre måter å finne på
Andre måter å finne på
Andre måter å finne på
Andre måter å finne på
Andre måter å finne på
Andre måter å finne på
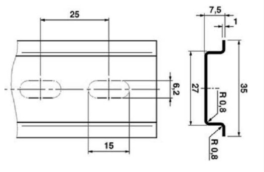
Vare.nr 20124058
Smidig og sikker installasjon med DIN-skinne 35 i 1 m lengde En standardløsning for effektiv og organisert montering av elektriske komponenter i kapslinger og apparatskap. Les mer
Varianter
Utgjør den skjulte, men avgjørende strukturen bak alle velfungerende elinstallasjoner. Ved å tilby en robust og ensartet festeflate muliggjør DIN-skinnen både tidsbesparende arbeid og økt driftssikkerhet – enten du bygger nytt, moderniserer eller utfører servicearbeid i felt. Leveres i 1 meters lengde for egen kapping.
DIN-skinne 35, også kjent som TS35 eller top-hat-skinne, følger internasjonal standard (EN 60715) og er dermed kompatibel med majoriteten av dagens automatsikringer, releer, koblingsklemmer og styringssystemer. Dette gjør den til et opplagt valg i både industrielle anlegg og bygningsinstallasjoner. Ved å bruke en standardisert skinne unngår installatøren spesialtilpasninger – noe som sparer både tid og penger.
Skinnen leveres i én meters lengde, men kan enkelt kappes til ønsket størrelse med baufil eller kappverktøy. Komponentene klikkes på plass uten behov for skruing. På den måten kan du raskt bytte ut en komponent på stedet, noe som minimerer nedetid ved feil.
Standardisert i henhold til EN 60715 – passer til de fleste komponenter
Tåler krevende miljøer – ideell for nordisk klima
Enkel montering og justering
Robust konstruksjon i galvanisert stål eller rustfritt
Fleksibel lengdetilpasning for ulike skap
I det moderna informationssamhället tenderar man att fokusera på brandväggar, kryptering och antivirusprogram som centrala delar av IT-säkerhetsarbetet. Men inom Försvarsmakten och andra säkerhetskritiska myndigheter, företag och universitet lyfts även ett mindre omtalat men ytterst allvarligt hot: röjande signaler (RÖS). Dessa är oavsiktliga elektromagnetiska utsläpp från elektronisk utrustning, som kan avlyssnas och användas för att rekonstruera känslig information, även om själva datatrafiken är krypterad. Därför ser vi nu anledning att kika närmare på vågfällor och viktiga åtgärder för att minska risken för avlyssning.
Rackstuds, installatørens redning
Endelig slipper du verktøy, blodtap og knekte negler når du skal montere paneler og rackutstyr. Si adjø til den gamle kassemutteren, og ønsk nye og smarte Rackstuds velkommen.
Strips er mye mer enn bare en plastbit. Skal de brukes som en rask løsning, eller skal de holde lenge? Av og til lønner det seg å velge løsninger som varer lenge uten å måtte repareres eller byttes. Du bør vite hvilket miljø og hvilke ytre faktorer, som UV-lys, forurensning, kjemikalier, temperatur, stråling eller vibrasjon, stripsene må tåle